El Celestyal Journey ofrece una experiencia de crucero cómoda y completa, con una amplia variedad de camarotes y suites, muchas de ellas con balcón privado y servicios de alto nivel. A bordo cuenta con varios restaurantes que ofrecen distintas propuestas gastronómicas, además de bares y salones para relajarse durante el día o la noche. Dispone de piscinas, jacuzzis, spa, sauna y zonas de bienestar para el descanso, así como espacios abiertos para tomar el sol. El entretenimiento incluye espectáculos en vivo, música, actividades diarias y áreas para niños, junto con servicios adicionales como gimnasio, salas de reuniones y atención personalizada en las categorías más altas, todo pensado para que el viaje sea confortable y agradable.
Celestial Journey
Descubre sus detalles
Celestyal Cruises
Mar Mediterráneo
Si busca una aventura más prolongada, el Celestyal Journey ofrece los cruceros de 7 noches Grecia Idílica, y Grecia, Italia y Croacia Sublimes, los cuales pueden combinarse en un viaje de 14 noches. Este barco también navega por el golfo Arábigo en el itinerario Desierto Asombroso.
El Journey es la mayor estrella de nuestra flota y viaja a destinos inaccesibles para otros barcos.
El Celestyal Journey cuenta con todo lo necesario para que pueda relajarse y descansar cuando termine de explorar nuestros apasionantes destinos. Cubiertas soleadas, refrescantes piscinas y toda una planta dedicada a su bienestar. Restaurantes variados, bares acogedores, un programa de entretenimiento repleto de diversión y distintas categorías de camarote con cómodas camas que ofrecen un descanso reparador tras un día de descubrimiento.
Ficha técnica del barco
Comodidades del Celestial Journey
Puentes y camarotes del Celestial Journey
Cubierta 4
Interior Cosmos IA Cubierta 4
Camarote interior. Cuenta con dos camas bajas y una cama superior y un sofá cama individual o doble, baño con ducha, teléfono, secador de pelo, caja fuerte y televisor. Las camas individuales se pueden juntar bajo petición. Televisor, teléfono y caja fuerte. Cuarto de baño con ducha y secador de pelo.17
4
Exterior Cosmos XA Cubierta 4
Camarote exterior, con ojo de buey. Cuentan con dos camas bajas y una disposición que incluye un sofá cama doble con litera, baño con bañera o ducha, teléfono, secador de pelo, caja fuerte, TV y ojo de buey. Se pueden juntar camas individuales bajo petición. Televisor, teléfono y caja fuerte. Cuarto de baño con ducha o bañera y secador de pelo.19
4
Exterior Cosmos XC Cubierta 4
Camarote exterior con ventana. Dispone de dos camas bajas y una cama alta y una litera individual o doble con sofá cama. Además, dispone de baño con bañera, teléfono, secador de pelo, caja fuerte, TV y ventana. Las camas individuales se pueden juntar bajo petición.19
4
Exterior Cosmos XB Cubierta 4
Camarote exterior con ventana, vista mar. Cuenta con dos camas inferiores y una cama superior y una litera individual o doble con sofá cama. También dispone de baño con bañera o ducha, teléfono, secador de pelo, caja fuerte y televisor. Las camas individuales se pueden juntar bajo petición. Televisor, teléfono y caja fuerte. Cuarto de baño con ducha o bañera y secador de pelo.19
4
Cubierta 5
Interior Cosmos IB Cubierta 5
Camarote interior. Cuenta con dos camas bajas y una cama alta y un sofá cama individual. También disponen de baño con ducha, teléfono, secador de pelo, caja fuerte y TV. Las camas individuales se pueden juntar bajo petición Televisor, teléfono y caja fuerte. Cuarto de baño con ducha y secador de pelo.17
3
Interior Cosmos IC Cubierta 5
Camarote interior. Disponen de dos camas inferiores y una cama superior y una litera individual o doble con sofá cama. Además, disponen de baño con ducha, teléfono, secador de pelo, caja fuerte y TV. Las camas individuales se pueden juntar bajo petición. Televisor, teléfono y caja fuerte. Cuarto de baño con ducha y secador de pelo.17
4
Exterior Cosmos XD Cubierta 5
Camarote exterior con ventana. Dispone de dos camas individuales separadas, convertibles en cama doble (en la mayoría de los camarotes), previa solicitud. Algunos camarotes cuentan con sofá-cana individual. Varios camarotes disponen de sofá-cama doble (en vez de dos camas individuales) y litera. Televisor, teléfono y caja fuerte. Cuarto de baño con ducha o bañera y secador de pelo. Tamaño aproximado del camarote: 19m2. Nota: Dentro de la misma categoría de camarote, el tamaño, la disposición y los muebles pueden variar respecto a las imágenes. La imagen se muestra únicamente con fines ilustrativos.19
4
Exterior Cosmos XA Cubierta 5
Camarote exterior, con ojo de buey. Cuentan con dos camas bajas y una disposición que incluye un sofá cama doble con litera, baño con bañera o ducha, teléfono, secador de pelo, caja fuerte, TV y ojo de buey. Se pueden juntar camas individuales bajo petición. Televisor, teléfono y caja fuerte. Cuarto de baño con ducha o bañera y secador de pelo.19
4
Cubierta 6
Interior Cosmos IC Cubierta 6
Camarote interior. Disponen de dos camas inferiores y una cama superior y una litera individual o doble con sofá cama. Además, disponen de baño con ducha, teléfono, secador de pelo, caja fuerte y TV. Las camas individuales se pueden juntar bajo petición. Televisor, teléfono y caja fuerte. Cuarto de baño con ducha y secador de pelo.17
4
Exterior Cosmos XBO Cubierta 6
Camarote exterior con ventana, vista obstruida. Dispone de dos camas individuales separadas, convertibles en cama doble (en la mayoría de los camarotes), previa solicitud. Televisor, teléfono y caja fuerte. Cuarto de baño con bañera y secador de pelo. Tamaño aproximado del camarote: 19m2. Nota: Dentro de la misma categoría de camarote, el tamaño, la disposición y los muebles pueden variar respecto a las imágenes. La imagen se muestra únicamente con fines ilustrativos.19
2
Exterior Cosmos XB Cubierta 6
Camarote exterior con ventana, vista mar. Cuenta con dos camas inferiores y una cama superior y una litera individual o doble con sofá cama. También dispone de baño con bañera o ducha, teléfono, secador de pelo, caja fuerte y televisor. Las camas individuales se pueden juntar bajo petición. Televisor, teléfono y caja fuerte. Cuarto de baño con ducha o bañera y secador de pelo.19
4
Cubierta 9
Interior Cosmos IB Cubierta 9
Camarote interior. Cuenta con dos camas bajas y una cama alta y un sofá cama individual. También disponen de baño con ducha, teléfono, secador de pelo, caja fuerte y TV. Las camas individuales se pueden juntar bajo petición Televisor, teléfono y caja fuerte. Cuarto de baño con ducha y secador de pelo.17
3
Interior Cosmos IC Cubierta 9
Camarote interior. Disponen de dos camas inferiores y una cama superior y una litera individual o doble con sofá cama. Además, disponen de baño con ducha, teléfono, secador de pelo, caja fuerte y TV. Las camas individuales se pueden juntar bajo petición. Televisor, teléfono y caja fuerte. Cuarto de baño con ducha y secador de pelo.17
4
Exterior Cosmos XD Cubierta 9
Camarote exterior con ventana. Dispone de dos camas individuales separadas, convertibles en cama doble (en la mayoría de los camarotes), previa solicitud. Algunos camarotes cuentan con sofá-cana individual. Varios camarotes disponen de sofá-cama doble (en vez de dos camas individuales) y litera. Televisor, teléfono y caja fuerte. Cuarto de baño con ducha o bañera y secador de pelo. Tamaño aproximado del camarote: 19m2. Nota: Dentro de la misma categoría de camarote, el tamaño, la disposición y los muebles pueden variar respecto a las imágenes. La imagen se muestra únicamente con fines ilustrativos.19
4
Junior Dream Suite SJA Cubierta 9
Junior suite con balcón. Dispone de 2 camas inferiores y 1 sofá cama individual, baño con bañera de hidromasaje o ducha, teléfono, secador de pelo, caja fuerte, TV, ventana panorámica, minibar refrigerado y balcón.21
3
Cubierta 10
Interior Cosmos IC Cubierta 10
Camarote interior. Disponen de dos camas inferiores y una cama superior y una litera individual o doble con sofá cama. Además, disponen de baño con ducha, teléfono, secador de pelo, caja fuerte y TV. Las camas individuales se pueden juntar bajo petición. Televisor, teléfono y caja fuerte. Cuarto de baño con ducha y secador de pelo.17
4
Junior Dream Suite SJC Cubierta 10
Junior suite con balcón. Dispone de 2 camas inferiores y 1 sofá cama individual, baño con bañera de hidromasaje o ducha, teléfono, secador de pelo, caja fuerte, TV, ventana panorámica, minibar refrigerado y balcón.21
3
Grand Suite SG Cubierta 10
Suite con balcón. Dispone de 2 camas inferiores y 1 sofá cama doble, baño con ducha, teléfono, secador de pelo, caja fuerte, TV, ventana panorámica, minibar refrigerado y balcón.35
4
Áreas comunes del barco

Área de alojamiento y descanso
Donde se encuentran todos los camarotes y suites con diferentes comodidades según la categoría elegida.

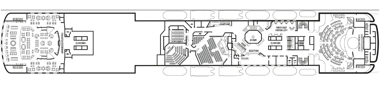
Área de vida social y entretenimiento
Incluye restaurantes, bares y salones, el teatro Ampitheatre Show Lounge, casino y zonas para actividades y espectáculos.

Área de bienestar y recreo
Con piscinas, jacuzzis, spa, gimnasio, zonas de solárium y otras instalaciones de relajación y ocio a bordo
Opiniones sobre este barco
Aún no tenemos opiniones registradas.
Ver todas las opiniones¿Quieres ser el primero en opinar?
Puedes hacerlo yendo a google y poniendo tu reseña o mandándonos un contacto desde nuestro formulario de contacto.
Imágenes del Celestial Journey
Cruceros del Celestial Journey
Suscríbete a nuestra newsletter para recibir novedades y ofertas
Recibirás emails con novedades y ofertas relacionadas con tus intereses en la dirección de email que nos proporciones. No utilizaremos tu email para ningún otro fin. Consulta nuestra Política de privacidad.
























